Early Reflections and Bass for Small Room Acoustics
For a long time, conventional wisdom has treated large and small room acoustics as one in the same. But, there are fundamental differences and objectives between the two and thus they should be handled differently accordingly. In large rooms, we are more concerned about diffuse soundfields and how to manage them while in small rooms, we are concerned about early reflections and low frequency behavior which is dominated by resonances and associated standing waves. As frequency increases, we see the transition from wave behavior to ray behavior. Thus in small rooms at low frequencies, the room dominates the sound whereas at higher frequencies the loudspeaker dominates the sound. This tends to happen at around 300Hz in small rooms and is known at the room transition frequency. In cinemas, above about 1 kHz the direct sound dominates. Above about 200 Hz, all significant acoustical activity occurs within the first 50 ms, this can only include the direct sound and a small number of very early reflections. This is determined by the combination of loudspeaker directivity and acoustical absorption in the room. As you can see, there is quite a distinct difference between small and large rooms and how we should deal with them. In this article we will limit the discussion to small room acoustics.
A large portion of Acousticians have applied the LEDE (Live End Dead End) approach to small room acoustics whereby they would treat the first reflection points (side walls and floor ceiling) with absorption thinking this was the proper way to deal with early reflections. Dr. Floyd Toole was one of the first to challenge this notion in Sound Reproduction:Loudspeakers and Rooms. There he assembled results from several researchers as well as himself, and the conclusions were not black and white. Many people in recreational listening actually preferred early reflections when music was played back in lively rooms on loudspeaker systems exhibiting flat on-axis response with uniform and controlled off-axis dispersion. Preserving the off-axis reflections actually added to a sense of spaciousness and enhanced the directional cues in program material compared to simply absorbing the early reflections with absorption, most notably the lateral (side wall) reflections.
Before reading on, check out our brief YouTube video discussing small room acoustics, bass trapping and early reflections.
Small Room Acoustics Discussion: Early Reflections and Bass (also see Part 1 here)
What about different listening environments?
According to Toole, the perceptual effect of early lateral reflections depends on what one is doing. From mixing, to mastering, to listening for pleasure the evidence is that reflection levels can progressively increase. This is not just one person’s opinion. A recent AES paper indicated that mastering engineers preferred more reflections than mixers. Mastering engineers need to hear what their customers hear. Some very well known mastering engineers work in their living rooms using consumer loudspeakers. And this is all stereo. For home theater and movies it is very different in multichannel - imagine an LEDE cinema or home theater. Finally, historically the pro audio situation has been plagued by large monitor loudspeakers with miserable off axis performance, for which the only practical solution is to absorb it. It is less true these days, but the pattern of RFZ and LEDE were set in those days - it is in the book. There is vanishingly little real research on this important topic. It seems to be happening now - late in the day.
statistically, "no main effect was found for acoustical treatment."
In a recent AES paper titled: The Practical Effects of Lateral Energy in Critical Listening Environments authored by Richard King, Brett Leonard and Grzegorz Sikora, controlled listening tests were conducted in small rooms with a panel of 26 professional recording and mixing engineers, editors and producers, and students of sound recording. The goal was to determine if there was a preference among absorption, diffusion or reflection for the lateral surfaces (first sidewall reflection points relative to the front speakers). The study focused specifically on the working audio professional and the audio production environment. The results correlate the presence of strong lateral energy with an initial reduction of subjects ability to complete the task within normal tolerances, but adaptation soon occurs, restoring the subjects to practically normal pace and accuracy. Statistically, "no main effect was found for acoustical treatment". In terms of the personal preferences expressed by these experienced mixers, eleven voted for reflection, eight for diffusion and seven for absorption. This evidence tells us that even though the different situations produced audible changes, the pros adapted quickly to differing circumstances. While there were personal preferences, they were not unambiguously associated with better performance at the mixing task. The tests were done blind.
Bottom Line on Early Reflections and Acoustical
Treatments:
Don't just simply throw absorption all over your walls. First, you need to select good speakers with
flat on-axis response and controlled well behaved off-axis response to preserve
the critical early reflections that beneficially add to the sonic landscape
that the speakers portray in the room. Care should be taken on how to treat the sidewall lateral reflections or if one
should instead focus on other areas of the room instead. Whatever is done, be careful not to make
things worse. If your choice is to absorb sound, absorb as much as possible,
using 3 – 4 inch panels. Do not just absorb the tweeter output by using 1-inch
material.
Check out our article on Early Reflections: Beneficial or Detrimental for more info on this topic.
It is also recommended that the reader takes a further look at the recent AES Paper authored by Dr. Floyd Toole available for FREE called: The Measurement and Calibration of Sound Reproduction Systems
Bass in Small Rooms: To Trap or NOT to Trap?
Small rooms can be a great environment for sound reproduction IF you can control the bass. Because the room dimensions are often comparable in size with the physical dimensions of the bass waves (ie. 20Hz = 56.5 ft), standing waves can really wreck havoc on the quality of bass each listener hears in the room. Conventional wisdom has again turned towards passive room treatments to solve this problem. We call these low frequency absorbers bass traps. Bass traps don't actually trap the bass per se. Instead, they convert mechanical energy (bass) into heat. Bass traps for LF absorption are usually big and heavy and you need a lot of them to be effective down to the lowest frequencies. This process essentially removes the problematic build up of standing waves but it also reduces system efficiency meaning you now have to turn the bass levels up to perceive the same SPL from an untreated room.
What are the various types of bass traps?
Absorbers are defined by how they function: resistive (fluff or foam), or mechanical (diaphragmatic) or acoustical (Helmholtz) resonators. The former requires particle velocity, the latter sound pressure to function.
- Velocity based absorbers - bass traps are typically large panels based on porous, absorptive material. This includes but is not limited to: fiberglass, mineral wool, acoustic foam, and similar materials. These are also known as broadband absorbers and cover a wider frequency range than tuned traps.
- Pressure based absorbers - are specifically designed to deal with low frequency issues in a more compact form. There are many different types of pressure based devices, such as sealed panel absorbers, Helmholtz resonators, and membrane absorbers. Pressure-based bass trapping is also commonly called tuned traps, sealed traps, resonant absorbers, or narrowband absorbers.
Editorial Note on Resistive/Velocity Absorbers:
The acoustical effectiveness of fibrous or foam acoustical absorbers is very similar. The high density fiberglass boards are not more effective than low density “fluff” - but they are structural (the material was created as thermal insulation for flat roofs, to be walked on). The really important factor is the thickness of the material. Remember bass waves are very large requiring thickness of 1/4 wavelength of the frequency in question to be effective. (IE. 60Hz = 4.7 ft deep!) Thinner materials will still absorb, but will be less effective.
Bass Trap Placement Diagram - courtesy of www.arqen.com
Where do I place bass traps?
Bass traps must be located where there is either particle velocity or sound pressure (which depends on the standing wave pattern), so just anywhere does not work.
For pressure based absorbers, you typically place them at the corners of the room where there are pressure maximums. Ceiling and side walls are other areas that can be trapped – wherever there is a pressure maximum in the standing wave pattern - and some folks even go so far as to create tuned Helmholz resonators as part of a riser platform to raise the theater seating.
For velocity based absorbers, they are ideally placed at pressure minimums where velocity is maximum. This is usually located at 1/4 the room dimension (ie. 25ft room length would put it at roughly 6ft). Obviously this is not practical at very low frequencies, which is why these materials are almost exclusively used at middle and high frequencies.
A Word of Caution about Bass
Traps
There is absolutely no argument that passive acoustical treatments
improve the low frequency situation. There is a small concern that one is
pretty much forced to absorb energy at "good" frequencies as well as
"bad" frequencies - the treatments are broadband, even
"tuned" membranes are low-Q, and it may or may not be possible to
locate them where they most effectively address the standing-wave problems.
Is there an alternative to passive treatments for bass frequencies?
Yes! The latest research shows that you can effectively accomplish the same thing as low frequency passive room treatments by deploying multiple subs. Multi-subs properly placed will smooth out room modes and give you better seat to seat consistency for bass. You can then use global EQ to cut the bumps which will work for several seats since loudspeakers and rooms (at low frequencies) are minimum phase. Using Fourier analysis, one can relate frequency and time domain behavior interchangeably. This means whatever bumps you reduce in the frequency domain through EQ will also improve its time domain behavior too! It boggles my mind when I visit most acoustics companies websites and see them deploying 40 or 50 bass traps in a room with only one sub. It's time to change that thinking. It's time to embrace science!
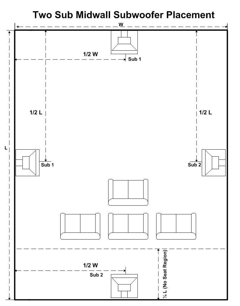
Please read: Multi-Sub Set Up and Placement Guide for more information.
Multi-Subwoofer Placement Diagram for Symmetric Rooms
Editorial Note on Minimum-Phase Devices:
Loudspeaker transducers - woofers, midranges and tweeters - are minimum-phase devices. Room resonances at very low frequencies are minimum-phase phenomena. So, when we make in-room measurements we can find resonances in the frequency responses at low frequencies, and equalize them with matched parametric filters. This kind of equalization works only at the measurement point, or at a few locations, but there will be large seat-to-seat variations. This is why passive absorbers (bass traps) are useful to damp the resonances – if your room décor can accept them. Multiple subwoofers employed in an arrangement known to work provide another alternative. Once the seat-to-seat variations are reduced, then equalization will be useful to more listeners in the room.
Since room modes are minimum phase phenomena, the amplitude response contains ALL of the essential information. That is not a matter of opinion, it is physics. If a curve is made more smooth by any means, the resonance is attenuated in both frequency and time domains.
It's important to note that EQ is NOT useful for getting rid of nulls. Nulls are very location dependent, and fortunately not nearly as audible as resonant peaks. This is why it's critical to get your multi-sub placement and seating optimized BEFORE using EQ.
What about bass frequencies above the subwoofer(s) crossover point?
The benefits of multi-subwoofers can only be achieved within the bandwidth of operation of these devices. The typical subwoofer setup low passes the subs to 80Hz at 24dB/Oct. This means at 160Hz, the output of the subs will be 24dB lower than it was in the passband below 80Hz. Boundary effects caused by placing the loudspeakers close to wall surfaces can cause frequency aberrations or suckouts. This can be improved to some extent with EQ but passive treatments can also be a very effective option. Don't discount any tools at your disposal.
Editiorial Note about Acoustic Material Specifications:
When shopping for acoustical materials or devices, especially those claiming to be useful at bass frequencies, be sure to look for high sound-absorption-coefficient ratings at the frequencies that are bothering you. Some products advertised as bass absorbers are really “upper-bass” absorbers, doing little or nothing in the subwoofer frequency range. If you cannot find these ratings, be suspicious.
What about Multi-Subs and Bass Trapping?
If you don’t have a symmetrical room with optimal sub placement, you can still use multi-subs, EQ and some bass trapping to get you there. I never recommend setting up a system with just one sub and trapping the hell out of your room. The latest research in small room acoustics dictates go multi-subs to reduce your dependency on low frequency absorption.
What about non symmetric rooms?
Non symmetric rooms (ie. rooms that are not square or rectangular shaped) are unpredictable. You can’t use simple room mode calculators or rule of thumb guidelines for subwoofer placements. This is where a measurement system of sufficient resolution (1/12th octave or higher) is needed.
Take my personal setup which does NOT have ideal sub placement to take full advantage of the modal control multi-subs offer. I still get pretty good results for all but the back right seat. If I put a damn sub there, then I would have nirvana. I am working on this!
Look at my before/after graphs of my old system with No EQ in Green and EQ in Purple. The dark green line is the averaged response of all six seats without EQ while the dark purple line is the averaged response of all six seats with EQ.
Bass Measurements for Multiple Seats with NO EQ
Bass Measurements for Multiple Seats with EQ
You can clearly see that reducing the low frequency bump helped ALL of the seats. However EQ did NOT improve seat to seat consistency. Again this would have been improved if I had better subwoofer placement and a rectangular room. Odd shaped rooms and poor sub placement still can make a case for some LF bass trapping if one cannot ideally locate all the subs.
For further insights, we recommend checking out Chapter 13 of Sound Reproduction: Loudspeakers are Rooms which shows tons of multi-seat measurements before/after one sub vs multi sub, and multi sub with NO EQ vs multi-sub with signal processing and EQ (called SFM). Toole shows a waterfall plot in Fig 13.21 that demonstrates reduction of ringing due to energy being removed from a pesky mode. Using sound field management yields room curves that gently undulate - there is no evidence of discrete modes at any of the tested locations, and that is what one hears - deep, tight, resonance-free bass, that is dramatically demonstrable by switching SFM off and on. It is best at the selected seats, but the modes are suppressed over most of the room. To test this, one just needs to put on a kick drum/bass guitar loop and walk around the room.
Figure 13.21 (Toole, 2008) - A comparison of steady-state frequency responses (a) and (b) and waterfall diagrams (c) and (d) for both kinds of equalization
What about Waterfall Plots and Mode Cancellations?
As for waterfalls, they incorporate a tradeoff of frequency resolution vs. time resolution. If you look at Figure 13.23 you will see what needs to be done to reveal reliable time-domain data. Most waterfalls I have seen by others look pretty much like (b) or (c). It is only when you seriously reduce frequency resolution that you can see what is happening in the time domain. In (d) one sees that when the signal ceases (the curve at the back) there is a rapid drop of about 10 dB in signal level - that continues to fall until it disappears into the "noise" The longer ringing just lower in frequency is another lower energy mode, but it is not powerful enough to show up in the steady-state curve, and therefore is not a problem. Unless a waterfall is accompanied by setup data specifying frequency and/or time resolution they are of questionable value. I think most people simply don't understand that this tradeoff exists.
Figure 13.23 (Toole, 2008)- Examples of different resolutions in time and frequency domains for the same acoustical situation.
(a) very high resolution steady frequency response. (b), (c), (d) waterfall diagrams with different frequency and time resolutions.
The reason Floyd personally "discovered" mode cancellation was because the alternative of large low frequency absorbers was simply not an option in his family room in Canada which had an intolerable boom. He puzzled over it for weeks, and lateral thinking led him to try mode canceling. It worked, the boom went away - not just at one point - like magic. He was elated. Later, at Harman, where he encouraged Todd Welti to investigate generalized multi-sub cancellation schemes. They exist and they work. The "active" versions really work. It was lateral thinking, that's all, and the result is alternatives to the traditional methods. That is progress.
Any of the SFM before and after plots in Floyd's book and elsewhere show that after SFM two things happen; (1) behavior at all seats is very similar (i.e. standing waves/room resonances have been attenuated) and (2) all of the curves at all seats are smooth, lacking evidence of resonant peaks (i.e. standing waves/room resonances have been attenuated). This is evident in my own room curves shown earlier by the lack of resonant peaks. The curves are similar and the waterfalls show negligible ringing.
Waterfall plot of bass at primary listening seat in Audioholics Theater Room (800ms time range)
This is a waterfall plot of my listening space with NO EQ present. Notice the bass is well damped below 60Hz with no bass traps in the room. There is slight ringing in the 60Hz to a lesser extent at 72Hz which could be reduced with matched Parametric EQ's to tame them.
Corresponding Frequency Response Measurement of primary listening seat in Audioholics Theater Room
As you can see, the peaks from the modal ringing centered at 60Hz and 72Hz are quite minimal. The bass response measured across this entire row of seating is +-5dB from 14Hz to 80Hz. That's impressive considering its an odd shaped room with non optimal subwoofer placement and NO EQ present!
Bottom Line on Bass in Small Rooms:
There are two fundamentally different approaches to improving bass experiences in small rooms: passive absorption and multiple-subwoofer strategies. They both can work if done well. If you are having live musical performances in your room you have no option, you must use passive absorbers. If you are reproducing sound through loudspeakers you have a choice. If it is a dedicated room and large acoustical contrivances are acceptable, passive treatments can bring satisfaction. If not, embracing the latest scientific research of multiple subwoofers and EQ will allow the end user to greatly reduce their dependency on low frequency absorption to deal with bass problems that dominate small room acoustics. Non symmetric rooms are more challenging requiring a bit of trial and error along with precise acoustical measurements to arrive at the best subwoofer locations and set up. Passive treatments can be used to supplement such situations. It is good to have choices!
Conclusion
If anything is to be learned in this article it's that small room acoustics need to be treated differently than how conventional wisdom has been doing for so long. Good speaker selection and the preservation of early reflections is vital in accurate and pleasing sound reproduction for small room acoustics. Proper modal control for bass frequencies by deploying multiple subs can greatly improve seat to seat variations so that everyone gets to hear good bass. Bass is responsible for up to 30% of the sonic experience in music and movies so this is a point that shouldn't be ignored. While passive treatments have their place, over reliance on them can be at the detriment of both aesthetics and sound quality one hears in their rooms.
Acknowledgements
I would like to personally thank the following people for their contributions and/or peer review of this article, all of whom are true experts in their respective fields. Their contributions enabled us to make the most comprehensive and accurate article on the topic matter of small room acoustics.
- Dr. Floyd Toole, retired VP Acoustical Engineering, Harman International ; Published Author of: Sound Reproduction Loudspeakers & Room
- Todd Welti, Harman International
- Main article image courtesy of Carl Tatz Design







